Autor: Karl Kohn
Análisis y digitalización: Miguel Antonio Sánchez Burneo
La vivienda no posee ejes regulares de cimentación de columnas, más bien se levanta sobre una compleja red de muros portantes que permite flexibilidad en el diseño. Kohn presta una especial atención al remate en las esquinas: las rompe o redondea y suaviza, logrando mediante esta estrategia otra visión de la convergencia de planos verticales y horizontales, conformado espacios diferentes, agradables y funcionales. Es característico de este arquitecto el puntualizar ciertas columnas haciéndolas circulares y pintándolas con un color ocre.
Análisis y digitalización: Miguel Antonio Sánchez Burneo
La casa de Vera Schiller de Kohn ubicada en la esquina de la
avenida 12 de octubre y Lizardo
García, se encuentra perdida en el tiempo tras los muros que la dividen de la
urbe. En esta fascinante casa ganadora de premio ornato, desde el ingreso se
evidencia que fue realizada para ser única y exclusiva, lo cual alude a la
importancia que el arquitecto le daba al usuario, en este caso su familia.
El contexto de la casa se ha ido
transformando con el paso del tiempo. De un lugar apartado del centro de la
ciudad donde se construían casas tipo villa ha pasado a ser una zona
estratégica donde las actividades comerciales, administrativas y financieras se
expanden. La creciente inversión inmobiliaria en el sector es un factor que
amenaza con destruir la vivienda en algún momento. De cara a estas
circunstancias es vital poner de manifiesto el valor de esta residencia.
Su implantación responde a condiciones
de soleamiento, ventilación y topografía.
También incidió en su diseño la necesidad de conformar un conjunto de casas familiares que se
relacionaran entre sí dentro de lo que todavía era un medio rural de expansión
urbana.
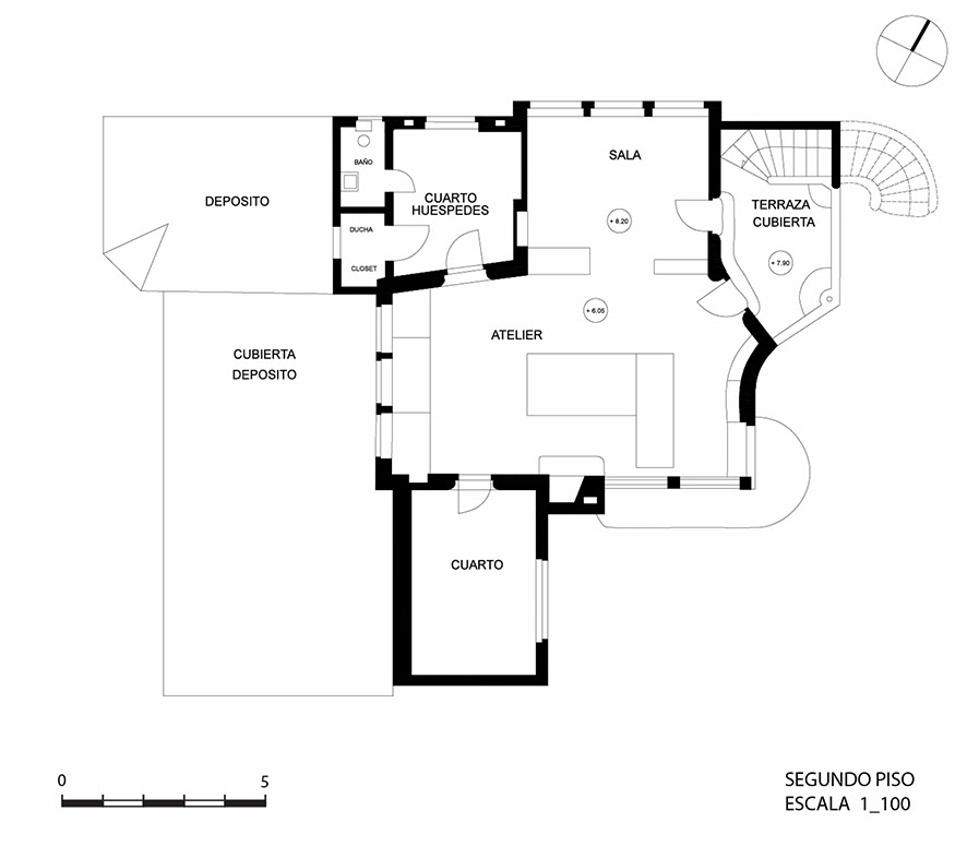
El programa arquitectónico de la
vivienda se manejó ubicando en segunda planta un taller de arquitectura con su
respectiva sala de espera. En esta planta también se incorporó una habitación
con un baño que sirve de alojamiento para huéspedes. Al ser la segunda planta
de carácter semi-público, la escalera de acceso a este lugar es totalmente
independiente de las plantas inferiores, y cuenta con una fácil y rápida
accesibilidad desde la calle. En planta baja se desarrollan todas las actividades familiares. Se
aprovechan los desniveles
para diferenciar el grado de privacidad de cada espacio: los semi-públicos
se despliegan en planta baja y las habitaciones más privadas como los
dormitorios ocupan el nivel superior. Un doble circuito de circulación
vincula todos los espacios de la residencia y define una escalera de servicio. En el sótano se encuentra la
estructura que soporta la vivienda, así como todas las instalaciones que hacen
posible funcionar a esta máquina de habitar.
La vivienda no posee ejes regulares de cimentación de columnas, más bien se levanta sobre una compleja red de muros portantes que permite flexibilidad en el diseño. Kohn presta una especial atención al remate en las esquinas: las rompe o redondea y suaviza, logrando mediante esta estrategia otra visión de la convergencia de planos verticales y horizontales, conformado espacios diferentes, agradables y funcionales. Es característico de este arquitecto el puntualizar ciertas columnas haciéndolas circulares y pintándolas con un color ocre.
La conexión con la vegetación al
interior de la vivienda está marcada
en la sala por una
intromisión del jardín. Este espacio
cargado de vegetación al interior genera sensaciones de libertad, purificación y amplitud. Así mismo a lo largo de la
vivienda se marcan las ventanas como puntos de proyección hacia la naturaleza;
hacia el interior, un simple tronco se convierte en arte. En ciertos espacios
internos de la casa, Kohn perfora la losa para que puedan filtrarse la luz y el
agua hacia la vegetación. Emplea a menudo una pérgola de la cual descuelga
macetas con plantas. El jardín posee un diseño particular que responde a la
conformación de la vivienda. Tiene una parte frontal o de bienvenida, una
totalmente privada a escasos metros de los dormitorios y una exclusiva para el servicio y el patio
de cocina.
Kohn intercala materiales con textura
cruda y superficies lisas con la misma fluidez con que relaciona arquitectura y
naturaleza. En las fachadas, piedras rectangulares delinean ventanas y
chimenea, en medio de muros estucados y pintados con blanco. En el interior, espacios
como el lobby y el comedor
están totalmente recubiertos con madera, lo cual produce una sensación de
calidez y abrigo. Los pisos en la sala y el comedor son de marmolina y madera.
La forma como maneja la luz hace
especial a Kohn. En este proyecto busca embeber en las losas las fuentes de
energía y generar entradas de luz indirecta, de manera que el resplandor aporte
con más calidez. En cuanto a las proporciones de las ventanas busca responder a
las condicionantes de la época (en Quito no había vidrios de grandes
dimensiones) uniendo varios módulos y generando vanos de gran tamaño para
permitir más entrada de luz natural y lograr una continuidad entre interior y
exterior.
El proceso de diseño de esta casa es atípico, puesto que fue
diseñada para alojar un mobiliario traído desde Praga: muebles que han sido
integrados o empotrados. Kohn toma en cuenta hasta el último detalle y diseña puertas
con recubrimiento inferior de cobre para evitar el desgaste; cerraduras con
inscripciones familiares; lámparas; letreros que marcan el ingreso peatonal; una
puerta mecanizada por un complejo sistema de poleas; piezas con reminiscencias
Art Nouveau y Art Deco; pisos con patrones geométricos… Son tantos los detalles
que demuestran que el arquitecto Karl Kohn no dejaba nada al azar. Con el fin de
alcanzar sus objetivos, a menudo desarrolló e introdujo tecnologías novedosas.
Kohn logra una obra maestra, en la cual lo funcional y lo natural
se funden en un hábitat y un orden claros; en una mezcla particular de los
estilos moderno, Art Nouveau y Art Deco.











Cuál ha sido el destino de esta casa? Sería oportuno hacer de ella un museo o centro de sanación espiritual. Con quién se puede hablar?
ResponderEliminarMi número 0983129302
ResponderEliminar